Stark frequentierte Innenstadtlage mit Sichtbarkeit, Erreichbarkeit und Stellplätzen
Eckdaten
- Art Gewerbeflächen
- Lage 36381 Schlüchtern
- Miete zzgl. NK 1.898,00 €
- Warmmiete 2.478,00 €
- Nebenkosten 580,00 €
- Gewerbefläche ca. 181 m²
- Bürofläche ca. 163 m²
- Baujahr 2022
- Gesamtfläche ca. 181 m²
- Heizungsart Zentralheizung
- Stellplatztyp Tiefgarage Aussenstellplatz
- Stellplatzanzahl 1
- Garagenanzahl 3
- Kaution 5.694,00 €
- Garagenmiete 50,00 €
- Stellplatzmiete 35,00 €
- Bezugstermin ab sofort
- Bodenbelag Vinyl
- Zustand Erstbezug
- Immobilien-ID 122250533
Immobilie
Zur Vermietung steht eine hochwertige, repräsentative Gewerbefläche im Neubau (Erstbezug) im OBERTORCENTER in zentraler Lage von Schlüchtern.
Die Fläche befindet sich im Erdgeschoss und eignet sich ideal für Einzelhandel, Dienstleistung, Praxis, Showroom, Beratung oder eine hochwertige Kundenbetreuung. Das Gewerbeobjekt ist barrierefrei zugänglich.
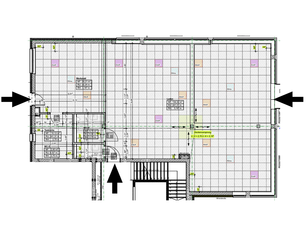
Die Einheit bietet ca. 181 m² Nutzfläche und ist in Absprache gestaltbar. Der Innenausbau und die Aufteilung können in enger Abstimmung mit dem Eigentümer an Ihr Nutzungskonzept angepasst werden. Dadurch ist sowohl eine offene, großzügige Verkaufs- / Präsentationsfläche als auch eine kleinteiligere Raumstruktur (z. B. Beratungs- oder Behandlungsräume) möglich.
Große, teils bodentiefe Fensterfronten sorgen für eine hervorragende Sichtbarkeit von außen und schaffen eine helle, freundliche und sehr einladende Atmosphäre im Innenraum.
Die Gewerbeeinheit liegt in direkter Nachbarschaft zu bereits etablierten Nutzern (u. a. Kreissparkasse, medizinische / dienstleistungsorientierte Anbieter) und profitiert dadurch von einer konstanten Kundenfrequenz sowie einem professionellen Umfeld.
Sonstiges / Hinweise für Interessenten:
• Repräsentative Außenwirkung durch die großflächige Verglasung
• Werbeflächen / Schaufensterbeklebung nach Absprache möglich
• Ausbau / Gestaltung flexibel möglich (in Abstimmung)
• Barrierefrei zugänglich
• Getrennte Sanitärräume für Damen und Herren
• Raum für Teeküche / Personal vorhanden
Die Fläche eignet sich unter anderem für:
• Einzelhandel / Fachgeschäft
• Showroom / Studio
• Praxis / Therapie / Gesundheitsdienstleistung
• Büro- / Beratungs- / Servicestandort
• Versicherungen, Finanzdienstleistungen, Immobilienbüro
• Kosmetik / Beauty / Ästhetik (vorbehaltlich Genehmigung)
Gern stellen wir Ihnen weitere Unterlagen zur Verfügung oder besprechen mit Ihnen gemeinsam die mögliche Aufteilung nach Ihrem Konzept.
Sprechen Sie uns gerne an.
Wir freuen uns darauf Ihnen diese attraktive Gewerbefläche persönlich vorzustellen!
Lage
Die Gewerbefläche befindet sich im neu errichteten OBERTORCENTER in bester Innenstadtlage von Schlüchtern. Das Objekt liegt im direkten Stadtzentrum, in fußläufiger Nähe zu Banken, Einzelhandel, Gastronomie, medizinischen und dienstleistungsorientierten Angeboten. Durch diese gewachsene Nutzungsmischung entsteht eine kontinuierliche Frequenz aus Laufkundschaft, Stammkunden und Terminbesuchern.
Schlüchtern ist eine Mittelzentrum-Stadt im Main-Kinzig-Kreis und übernimmt im ländlich geprägten Umland eine wichtige Versorgungs- und Dienstleistungsfunktion. Die Stadt wird von privaten Endkunden genauso frequentiert wie von mittelständischen Unternehmen der Region. Entsprechend hoch ist die Sichtbarkeit für gewerbliche und beratende Nutzungen, die auf Präsenz, Vertrauensbildung und Erreichbarkeit angewiesen sind.
Die Anbindung ist sehr gut: Der Bahnhof Schlüchtern (Regional- und überregionale Verbindungen) ist schnell erreichbar. Über die A66 (Frankfurt – Fulda) ist Schlüchtern sowohl aus dem Rhein-Main-Gebiet als auch aus Osthessen sehr gut angebunden. Kunden und Mitarbeiter erreichen den Standort somit bequem sowohl mit dem Auto als auch mit öffentlichen Verkehrsmitteln.
Für den täglichen Betrieb besonders relevant ist die Parksituation: Neben öffentlichen Parkmöglichkeiten in der direkten Umgebung stehen Stellplätze am Objekt zur Verfügung bzw. optional in der Tiefgarage. Das erleichtert die Anfahrt für Kunden mit Terminen, Patientinnen und Patienten oder Beratungsklienten enorm – ein klarer Standortvorteil gegenüber klassischen Fußgängerzonenlagen ohne Parkraum.
Die Fläche selbst liegt im Erdgeschoss mit großzügigen Schaufensterfronten zum Straßenraum. Sie ist dadurch hervorragend sichtbar und wirkt offen, modern und einladend. Die Nachbarschaft etablierter, frequenzstarker Nutzer – unter anderem die Kreissparkasse – sorgt zusätzlich für regelmäßige Laufkundschaft und eine seriöse, vertrauenswürdige Umgebung. Das ist ideal für Nutzungen mit Publikumsverkehr (Einzelhandel, Service, Beratung, Showroom), aber auch für Praxen, Therapie-/Gesundheitsangebote oder hochwertige Büro- und Beratungsleistungen, die Wert auf professionelle Außenwirkung und zentrale Lage legen.
Zusammengefasst bietet der Standort:
• zentrale Innenstadtlage in Schlüchtern
• direkte Nähe zu Banken, Dienstleistungen, Gesundheitsangeboten und Einzelhandel
• hohe Frequenz und gute Sichtbarkeit durch große Schaufensterflächen
• sehr gute Erreichbarkeit über Bahnhof und A66
• Stellplätze am Objekt bzw. Tiefgaragenplätze optional verfügbar
• repräsentatives Neubauumfeld mit seriösem Auftreten
Diese Kombination – Sichtbarkeit, Erreichbarkeit, Parkplatzverfügbarkeit und Neubauqualität – ist in dieser Form am Standort Schlüchtern nur sehr selten verfügbar und besonders attraktiv für gewerbliche Erstbezüge.
Ausstattung
• Neubau / Erstbezug
• Helle, lichtdurchflutete Fläche mit großen Schaufensterfronten
• Moderner Vinyl-Bodenbelag (pflegeleicht, hochwertig)
• Klimaanlage / Raumklimatisierung vorhanden
• Damen-WC und Herren-WC vorhanden
• Separater Raum für Küche / Teeküche vorgesehen
• Barrierefreier Zugang zur Fläche
• Beklebung / Beschriftung der Fensterflächen ist in Abstimmung möglich (Werbemöglichkeiten)
Die endgültige Ausgestaltung (z. B. Raumaufteilung, Oberflächen, Empfangssituation, Präsentationsbereiche) kann nach Mieterwunsch erfolgen – in Abstimmung mit dem Eigentümer.
Stellplätze:
• 1 TG-Stellplatz (zzgl. 50,- € monatlich) und 1 Außenstellplatz (zzgl. 35,- € monatlich) müssen angemietet werden.
• Optional können zusätzlich bis zu 2 Stellplätze in der Tiefgarage angemietet werden (je Stellplatz 50,- € monatlich).
Damit ist eine sehr komfortable Parksituation für Personal und/oder Kunden gegeben – ein klarer Vorteil gegenüber klassischen Innenstadtlagen.
Mindestmietdauer: 5 Jahre (Verlängerungsoptionen)
Indexmietvertrag
Sonstiges
Alle Preise zzgl. MwSt.
Der Maklervertrag mit uns und/oder unserem Beauftragten kommt durch schriftliche Vereinbarung oder durch die Inanspruchnahme unserer Maklertätigkeit auf der Basis des Objekt-Exposés und seiner Bedingungen zustande. Die Mietercourtage in Höhe von 2,38 Monatsnettokaltmieten inkl. gesetzlicher Mehrwertsteuer (zahlbar durch den Mieter) ist bei Vertragsabschluss verdient und fällig.
Energieausweisangaben
- Enerigeausweistyp Bedarfsausweis
- Energieausweis erstellt am 10.08.2023
- Energieausweis gültig bis 09.08.2033
- Heizungsart Zentralheizung
- Befeuerung / Energieträger Gas
Herzlichen Dank für Ihre Anfrage.
Wir werden diese so schnell wie möglich bearbeiten.

